JJ-20H型水泥膠砂攪拌機
一、 用途和適用范圍:
JJ-20H型水泥膠砂攪拌機是根據**建材院水泥所的統一圖紙制造,符合我國執行**強度試驗方法(ISO679)的標準設備。也可代替JC/T722用作 GB/T17671水泥膠砂試驗方法的攪拌機。并可用作美國標準、歐洲標準、日本標準水泥試驗的凈漿、砂漿攪拌機。
本機是水泥廠、建筑施工單位、有關專業院校及科研單位水泥試驗室bi備的,不可缺少的設備之一。
二、 主要規格及技術參數:
1、攪拌葉轉數
速度擋 | 自轉r/min | 公轉r/min |
低速 | 140±1 | 62.5±1 |
高速 | 285±1 | 125±1 |
2、攪拌葉在攪拌鍋內的運動軌跡同ISO679-1989(E)。
3、攪拌葉寬度135mm
4、攪拌鍋容積5L,壁厚1.5mm。
5、攪拌葉與攪拌鍋之間的工作間隙為3土lmm。
6、電機為單相交流伺服電機,功率750W。
7、外形尺寸:長x寬x高為620x452x815(mm)。
8、凈重78kg。
三、主要結構及工作原理:
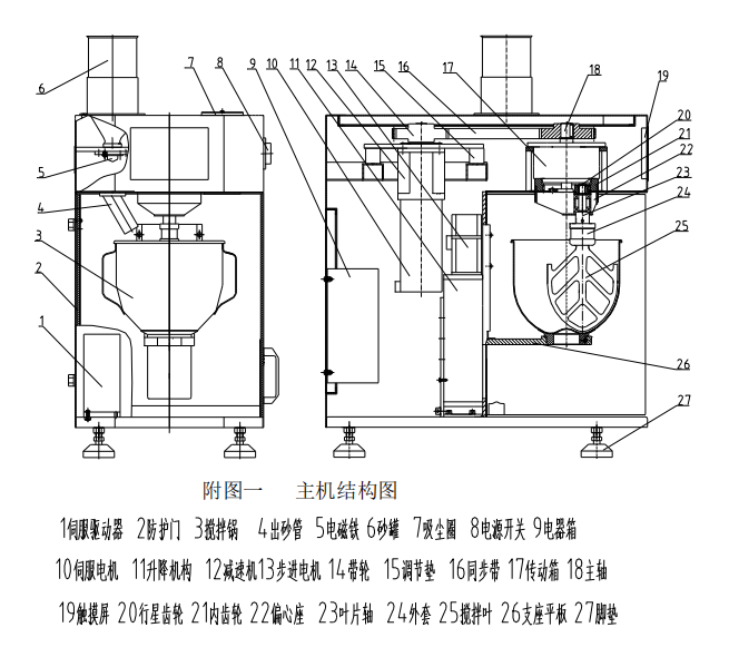
1、結構:主要有觸摸屏、伺服系統、自動升降裝置、加砂箱、傳動箱、主軸、偏心座、攪拌葉、攪拌鍋、底座、傳動機構、支座、防護罩等組成。
2、工作原理(見圖一)
關閉防護門(2),打開電源,通過觸摸屏控制攪拌鍋(3)自動上升,且上升到位后伺服電機(10)轉動。減速機(12)對伺服電機(10)進行減速后,由傳動機構兩帶輪(14)、同步帶(16),將動力傳給主軸(18)。主軸(18)帶動偏心座(22)同步旋轉,使固定在偏心座(22)上的攪拌葉(25)進行公轉。同時攪拌葉(25)通過葉片軸(23)上端的行星齒輪(20)圍繞固定的內齒輪(21)完成自轉運動。砂罐內加砂子后,可在規定時間自動加砂或手動加砂,攪拌結束后,攪拌鍋(3)可自動下降至零位。
四、起吊與安裝
1、本機設有起吊裝置。
2、本機安裝只需將主機放在平整的水泥平臺上,并在底面墊上一層厚5-8mm
橡膠板。
3、本機出廠前已安裝腳墊,如高度不統一,可旋轉螺母適當調節。
五、操作與使用
將本機電源插頭插入單相220V電源插座內并接通組合開關,此時觸摸屏顯示歡迎畫面表示電源接通。砂罐(6)內裝入1350g標準砂,攪拌鍋(3)內裝入水225g、水泥450g,將攪拌鍋(3)裝入支座(27)定位孔中,順時針轉動鍋至鎖緊,并關閉防護門。
(一)、水泥膠砂攪拌
本系統支持四種攪拌模式:水泥膠砂自動攪拌、水泥膠砂手動攪拌、其他模式自動攪拌和其他模式手動攪拌。在工作界面下,點擊觸摸屏上的“設置”按鈕,進入設置界面,然后在“攪拌試驗模式選擇”一欄的彈出菜單中選擇相應的試驗模式,***后點擊“返回”按鈕,系統將返回至相應模式的工作界面。
1、水泥膠砂自動攪拌
在該模式下點擊“啟動”按鈕,則攪拌鍋(6)首先自動上升至工作位置,然后系統自動完成一次低速30秒--再低速30秒,同時自動加砂--高速30秒一 -停90秒--高速60秒--停止轉動的試驗流程,整個試驗過程時長為240秒,***后攪拌鍋(3)自動下降至零位。在運行過程中,運行指示燈會一直閃爍,指示系統處于工作狀態,低速、高速、加砂指示燈也會隨著攪拌進度而適時開啟。在高速60秒之前會有5秒短聲提示音,表示即將進入高速攪拌階段;試驗完成后會有5秒長聲提示音,表示試驗結束,此時打開防護門(2),逆時針轉攪拌鍋(3)至松開位置,取下攪拌鍋。
2、水泥膠砂手動攪拌
在該模式下根據試驗需要,按“上升”“下降”按鈕,可調整攪拌鍋(3)的工作位置;按“低速”“高速”“加砂”按鈕,可控制低速和高速的轉動時間,低速時可以控制加砂時間的早、晚、長、短。
3、其他模式自動攪拌和其他模式手動攪拌
其他模式攪拌是為了滿足特殊攪拌要求而預留的一項功能,該功能有其他模式自動攪拌和其他模式手動攪拌兩種模式,其中自動攪拌模式提供了多達八段數據的編程,每一段編程都由公轉、時間、加砂、狀態組成,手動攪拌模式提供了三段公轉速度的設置。
在選擇其他模式自動攪拌或其他模式手動攪拌之前,一般需要用戶自行設置攪拌速度、時間、加砂等工作參數。參數保存后,系統將以本次設置作為其他模式自動攪拌或其他模式手動攪拌的工作參數。若此次工作過程和上次一樣,則可省略此步驟。
在工作界面下,點擊觸摸屏上的“設置”按鈕,進入設置界面,然后點擊“其他攪拌設置”按鈕,并輸入密碼90262838,進入其他攪拌設置界面。其中左邊為“其他模式自動攪拌設置”,可以自定義本段的公轉速度、運行時間、是否加砂,本段是否有效四個參數:右邊為“其他模式手動攪拌設置”,可以自定義三個公轉速度。其中公轉范圍0.0-150.0r/min:時間范圍3-9999秒;加砂可選是或否;狀態可選開啟或關閉,設置完成后點擊“保存”按鈕,則設定參數保存至非易失。

六、 調整與保養
a)調整:本機出廠前已將攪拌葉與攪拌鍋之間的工作間隙調整到3±1mm范圍。
b)保養:
(1)應保持工作場地清潔,每次使用后應****攪拌葉與攪拌鍋內、外殘余砂漿,并清掃散落和飛濺機器上的砂漿及臟污物,揩干后,套上護罩,防止灰塵。
(2)機器運轉時遇有金屬撞擊噪聲,應首先檢查攪拌葉與攪拌鍋之間的間隙是否正確。
(3)使用攪拌鍋時,要輕拿輕放,不可隨意碰撞,以免造成攪拌鍋變形。
(4)應經常檢查電氣絕緣情況,在溫度20℃5℃相對濕度50%~70%時的冷態絕緣電阻≥5MQ。











關注官方微信